弊社専任!北浜駅徒歩1分のオフィスビル♪
こんにちは、中山です。
10月に入り気温もグッと下がり、一気に秋らしくなってきましたね!
季節の変わり目は体調を崩しやすいとよく言いますが、私の周りでもちらほらと・・・。
なんでもインフルエンザが流行っているそうなので、外出先から帰られた際は手洗いうがいを徹底するようにしましょう!
本日は弊社がオーナー様より専任でお預かりしております『TAG北浜ビル』についてご紹介させていただきます!
先日こちらのビルを一棟売買致しまして、弊社は仲介という形で入らせていただきました(^^)/
新たな所有者となったオーナー様よりそのまま物件の管理を任された次第でございます!
大阪メトロ堺筋線・京阪本線『北浜』駅より徒歩1分で、『堺筋本町』駅からも徒歩5分という好立地のオフィスビルです!
鉄骨鉄筋コンクリート造(SRC造)の頑丈な構造で、検査済証もしっかりとございます!
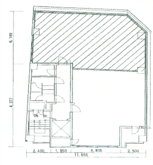
現在は3階の約25坪のお部屋が即入居可能にてご案内可能でございます\(^o^)/
大阪市内の中心部で、あなたのオフィスを構えてみてはいかがですか?
内見予約は随時承っておりますので、お気軽にお問合せください♪

【角地でスタイリッシュな格好良いビルです!】

【現在3階部分が即入居可能!】
