弊社専任物件『大洋ハイツ内久宝寺101号室』~大阪市中央区、谷町四丁目・谷町六丁目駅最寄りの分譲オフィス~
こんにちは、中山です。
近年東京を中心とした首都圏では分譲マンションならぬ、分譲オフィスの数が急速に増えてきております。
本日はそんな分譲オフィスのご紹介です♪
分譲オフィスとは
分譲オフィスとは一棟ではなく、フロアまたは部屋ごとに分譲することで、従来とほぼ同じ資金でより好条件の物件を所有できます。
例えば一棟が数十億になる都心のビルが、区分所有(分譲)なら10分の1程度に抑えることができるため、同じ金額でもより立地の良い物件やグレードの高い物件が購入できるようになります。
さらに賃貸オフィスですと、毎月のランニングコストとして家賃の支払いが発生しますが、決して自身の資産になることはありません。
その点、分譲オフィスですと、毎月家賃とほぼ同額の返済があったとしても、自身の資産になりますので賃貸オフィスよりメリットが多くなります。
大洋ハイツ内久宝寺
そして今回、弊社がオーナー様より専任で分譲オフィスをお預かり致しました。
場所は大阪市中央区内久宝寺町2丁目。
大阪メトロ谷町線・中央線『谷町四丁目』駅、大阪メトロ谷町線・長堀鶴見緑地線『谷町六丁目』駅より徒歩5分の好立地です!
こちらの101号室が今回の募集区画となります。
ただ101号室としてマンションでの表記、登記簿謄本にも登記されておりますが、実際は2階の高さにある事務所区画になります。
(路面区画の箇所が地下1階という表記になっております。)
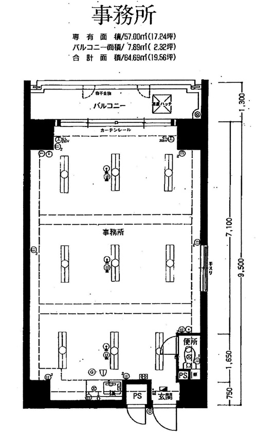
間取りは綺麗な長方形の形をしており、使いやすそうです♪
トイレとミニキッチンも設置されています!
オートロック完備で、モニター付インターホンが設置されているのでセキュリティ面もバッチリです!
月々の家賃を払うくらいなら、自分の資産になる分譲オフィスが欲しいとお考えの方!!
この機会にこちらの物件をご検討してみてはいかがでしょうか(*^^)v
※物件詳細につきましてはBRAVI不動産までお問合せください。







