弊社専任物件!布施駅一棟貸し店舗
★BRAVI不動産 オススメ物件★
☆弊社専任物件です☆

■■■■■■■■■■■■■■■■■■■■■■■■■■■■■■■■
「名称」 布施駅貸店舗
「所在地」 大阪府東大阪市足代北2-2-18
「交通」 近鉄大阪線・奈良線「布施」駅徒歩5分
「専有面積」 691.73㎡
「構造」 鉄骨造 地上2階建て
「駐車場」 なし
「火災保険」 加入必須
「保証会社」 フォーシーズ
「入居可能日」即時
「業種制限」 特になし(飲食店・物販・ジム・スクール等何商可)
■■■■■■■■■■■■■■■■■■■■■■■■■■■■■■■■
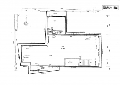
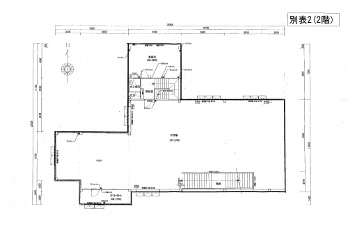
【間取り】




■■■■■■■■■■■■■■■■■■■■■■■■■■■■■■■■
物件詳細はこちら→布施駅貸店舗
ご見学の際は、
是非BRAVI不動産へお問合せ下さいませ。
地域の詳細や物件のご説明を真摯にご対応させて頂きます。
お問合せお待ちしております。
BRAVI不動産
大阪市中央区谷町3-2-6 BRAVI谷町2F
電話:06-6585-0183
メール: info@bravi-net.jp
