
寝屋川市石津南町の中古戸建をお預かりしました!【寝屋川市駅・香里園駅】
こんにちは、中山です。
8月に入り、引き続き暑い日が続いております。
今月6日から始まる第104回全国高等学校野球選手権大会が楽しみな今日この頃です(^^)/
私自身が高校野球をしていたのが、もう10年以上前のことかと思うと歳を取ったと感じると同時に、時の流れとはとても早いと感じます!
ですがまだまだ体力には自信がありますので、現役の高校球児にも負けませんよ!(笑)
寝屋川市石津南町の中古戸建を専任にてお預かりしました!
さて本日はBRAVI不動産が売主様より直接専任にてお預かりしました物件のご紹介です!
場所は大阪府寝屋川市石津南町。大阪府の北東部に位置するエリアです。
最寄り駅は京阪本線の『香里園』駅、もしくは同じく京阪本線の『寝屋川市』駅!
周りには一戸建てが立ち並ぶ閑静な住宅街です。
こちらにある築2年の中古戸建をお預かりしました!
東証一部上場のフジ住宅株式会社様が設計施工で、1階と2階の床下には合計1トンもの炭が敷き詰められているピュアエアを採用している住宅になります。
この炭は半永久的に消臭と空気洗浄効果(有害物質除去)が期待でき、自然に24時間換気をしてくれるので、今世間で大流行しているあのウイルスの対策にも効果があるかと思います♪

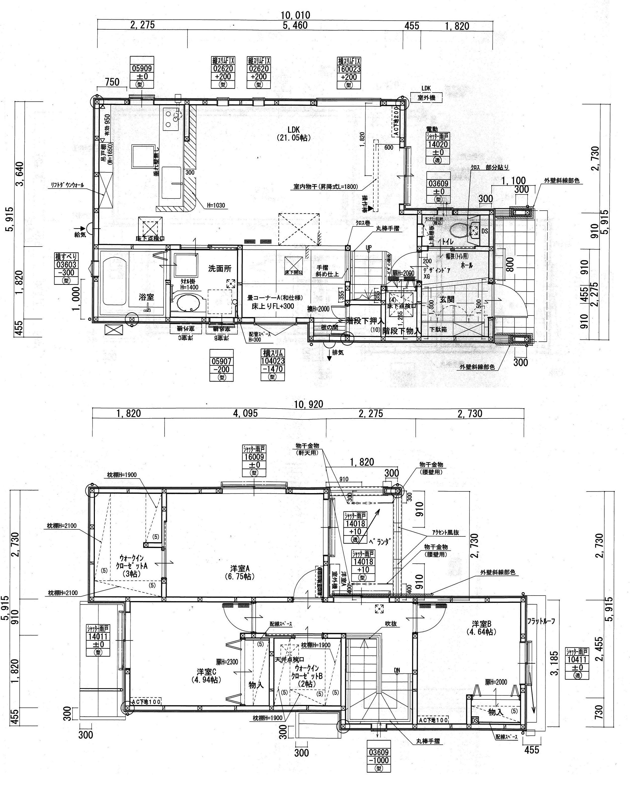
物件詳細『寝屋川市石津南町中古戸建』
所在地:大阪府寝屋川市石津南町(現在売主様居住中のため住所詳細は差し控えさせていただきます。)
交通:京阪本線『香里園』駅、『寝屋川市』駅徒歩20分
構造:木造2階建
新築年月:2020年6月
土地面積:89.03㎡
建物面積:95.22㎡
価格:36,800,000円
間取り:3LDK
主な設備:都市ガス・システムキッチン・カウンターキッチン・3口ガスコンロ・シューズボックス・温水洗浄便座・浴室乾燥機・24時間換気・独立洗面台・ウォークインクローゼット・全居室収納・モニター付インターホン etc.
※現在売主様が居住中ですので、ご内覧は事前予約制とさせていただいております。









ご見学の際は、
是非BRAVI不動産へお問合せ下さいませ。
地域の詳細や物件のご説明を真摯にご対応させて頂きます。
お問合せお待ちしております。
BRAVI不動産
大阪市中央区谷町3-2-6 BRAVI谷町2F
電話:06-6585-0183
メール: info@bravi-net.jp
